Authorities and UIT’s Online Services
Urban Housing and Development Department, Government of Rajasthan
Urban Housing and Development Department, Government of Rajasthan
View Auction[ Jaipur Development Authority ]
Auction Details
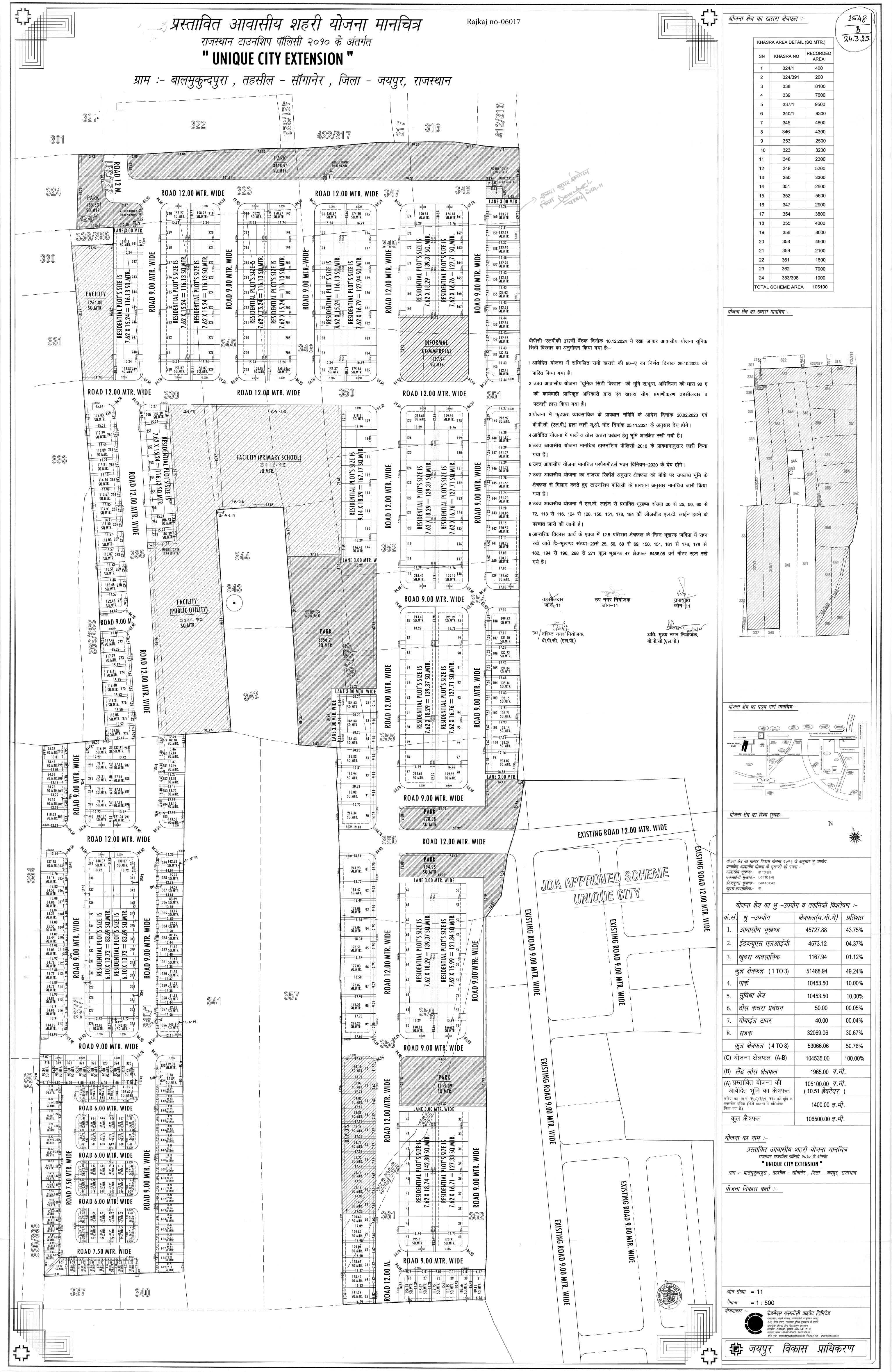
| ID/Title | : | [39924] / Residential Plot No. 16 Unique City Extension Scheme, Jaipur | |||
| Auction Refreance No | : | JDA/OSD(RM)/2025-26 | Auction Refreance Dispatch Date | : | 17-Nov-2025 12:00 AM |
Property Details
| Scheme Name | : | UNIQUE CITY EXTENSION | |||
| Property Id | : | RJJDA1/7641/000004H | Property Number | : | 16 |
| Zone | : | Zone 11 | Developer Type | : | Private Developer |
| Developer Name | : | NIJI KHATEDAR | Area | : | 133.35 Square Meter |
| Usage Type | : | Residential | Property Type | : | Plot |
Bid/Auction Details
Assessed Property Value as per Bid Start Price (BSP) : 56,00,700.00 (INR) (Actual value will be calculated as per Highest Bid + Other Charges) |
|||||
| Bid Start Price (BSP) (INR) | : | 42,000.00 [Per Square Meter] | Minimum Bid Increment Value(INR) | : | 100.00 [Per Square Meter] |
| Reserve Price (INR)(For Lease/UA Calculation Only) | : | 10,450.00 | Press/Portal Release Date | : | 17-Nov-2025 12:00 AM |
| EMD Deposit Start | : | 19-Nov-2025 12:00 AM | Auction Start Date | : | 19-Nov-2025 12:00 AM |
| EMD Deposit End | : | 10-Dec-2025 11:00 AM | Auction End Date | : | 11-Dec-2025 12:30 PM |
| Online Payment End Date | : | 10-Dec-2025 11:00 AM | NEFT Payment End Date | : | 10-Dec-2025 11:00 AM |
| Payment Mode | : | Online,NEFT RTGS | |||
| Auction Detail URL | : | Click to view | |||
Fee and EMD Details
Contact Details
| Contact Person(1st) Name | : | Marketing Cell JDA | Mobile Number | : | 9462569696 | Email : | : | property.jda@rajasthan.gov.in | |
| Contact Person(2nd) Name | : | Mobile Number | : | Email : | : | ||||
| Remarks | : | Residential Plot No. 16 Unique City Extension Scheme, Jaipur | |||||||
Site Visitor Details
| Site Person(1st) Name | : | Mobile Number | : | Email : | : | ||||
| Site Person(2nd) Name | : | Mobile Number | : | Email : | : | ||||
| Remarks | : | NA | |||||||
Documents
Is pre uploading of document required : No
Corrigendum/Notification Detail
No Record Found